< Back to Overview

The apartment is located near the public elevator that leads directly to the train station and La Condamine.
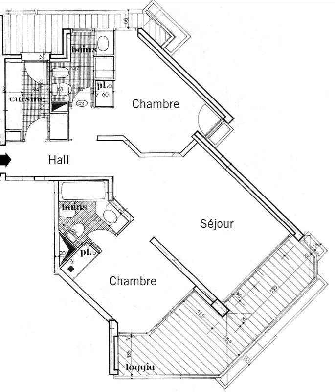
The kitchen is fully equipped, the living room is air-conditioned, and the rooms facing the street are very bright.
Viewings are easy to arrange.


Location: MONACO, MONACO
Building : Hérakleïa
Surface : 90 m2
Living Surface : 70 m2
Terrace : 20 m2
Rooms : 3
Bedrooms : 2
Bathrooms : 2
Cellars : 1
Parkings : 1
View :Clear Views
Availability : Rapidement
Rent / Month : 6.500 €
Charges / Month : 200 €
Reference : MKL3PHERAK

PDF Overview